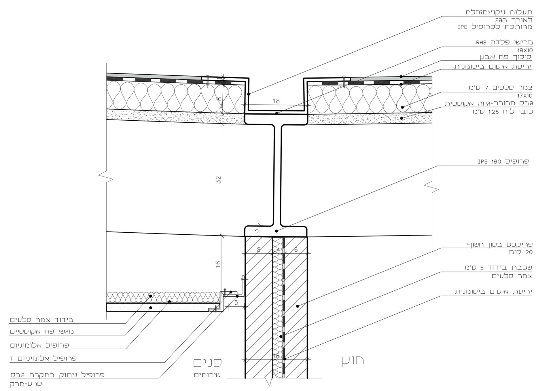
סטודיו טכנולוגי עסק בתכנון ביתן באוניברסיטה עבור סטודנטים ומרצים, תוך פיתוח של סט תכנון מקיף הכולל תכנון מפורט, שלביות בנייה ופרטי בניין. בתכנון הפרויקט בחרנו לייצר חלל לגלריה מתחלפת המתכתב עם השפה האדריכלית של מבני האוניברסיטה ומייצר שילוב בין מודרניזם לברוטליזם. החזיתות מדגישות קצב מבני, הצללות ועומק, בעוד שהחלל הפנימי נשען על תנועה זורמת ורציפות בין פנים לחוץ. הפרויקט בוחן שימוש בפריקסטים העשויים מבטון חשוף ועושה שימוש בקונסטרוקציית גג קלה

You may also like

Back to Top